Zum Inhalt springen

Produktbeschreibung

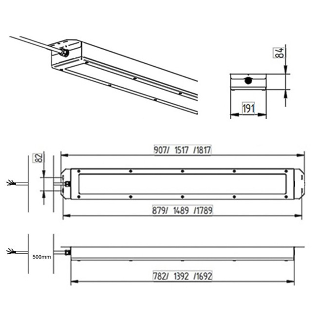
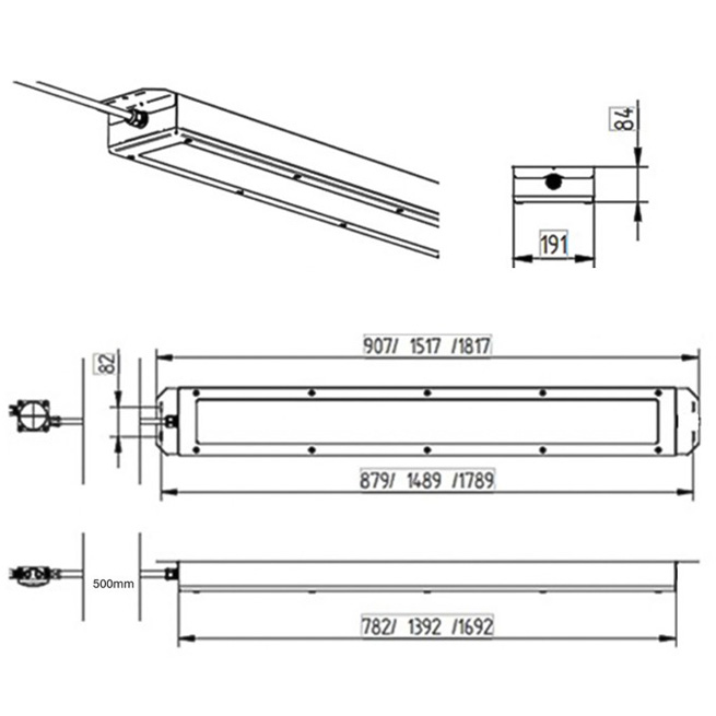
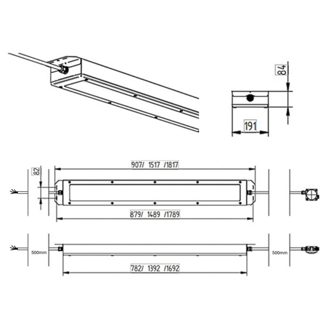
Die DB-gelistete Bahnsteigleuchte DPB 200 ist eine neue Leuchte von Designplan mit dem primären Anwendungsgebiet „überdachte Bahnsteige“. Sie kann dabei sowohl als Einbauleuchte in verschiedenen Deckensystemen verwendet werden, aber auch in Medienkanäle der am Markt bekannten Hersteller integriert werden. Symmetrische und asymmetrische optische Systeme ermöglichen es, die Leuchte auf den jeweiligen Anwendungsfall zu optimieren. Dabei kann die geeignete Leuchte durch drei verfügbare Baulängen jeweils passend ausgewählt werden. Eine Vielzahl an Lumenpaketen erweitert die Flexibilität zusätzlich.
DPB 200 kann jedoch nicht nur im ober- oder unterirdischen Bahnsteigbereich eingesetzt werden, sondern ist durch den erhöhten Schutzgrad IK 10 (entspricht einer Schlagenergie von 20 Joule) auch geeignet, in Unterführungen und anderen Bereichen mit Vandalismusgefahr installiert zu werden. Durch diese Robustheit ist DPB200 auch den Anforderungen an Interimsbeleuchtung für Baustellen im Bahnbereich gut gewachsen. Mehrfache Montage und Demontage oder Stöße durch Werkzeuge stellen kein Problem für die Funktion dar. Die DB-gelistete Bahnsteigleuchte wurde durch ein externes Institut neben den üblichen Anforderungen auch den erschwerten Prüfbedingungen von Einbauleuchten nach EN 60598-2-2:2012 unterzogen.
Durch die Möglichkeit, DPB200 anschlussfertig mit Zuleitung und Schnellverbindungsbox zu erhalten ist es zur Installation der Leuchte nicht einmal erforderlich, diese zu öffnen. Das spart viel Zeit bei der Installation und minimiert Fehlerquellen.
Diese Leuchten eignen sich besonders für: Integration in Standard-Bahnsteigdachsysteme sowie Medienkanalsysteme auf Bahnsteigen, Bahnhöfen, Busbahnhöfen, Eingangsbereiche, Personenbahnhöfe, Verteilerebenen und Vordächer.

Ausführung gemäß Anforderungen f. Leuchtenauswahlliste:

  • integrierter Überspannungsschutz (10 kV)
  • Fallsicherungen
  • Innensechskantschrauben
  • -25 °C bis +45 °C Umgebungstemperatur

Besonderheit: Die Leuchte entspricht den Anforderungen an Leuchten für Notbeleuchtungen nach EN 60598-2-22.

Weitere Details

Gehäuse: Gehäuse aus Zintec-Stahl, extrem korrosionsbeständig
Farbe: titan – weitere Farboptionen.
Diffusor: Polycarbonatdiffusor (klar) mit Filmbeschichtung prismatisch, symmetrisch oder asymmetrisch
Geräteträger: Wechselbarer Geräteträger. Enthält Treiber, LED-Platinen und ggf. weitere Komponenten
Montage: Anbau- / Einbaumontage oder Integration in passendes Medienträgerprofil
Kabeleinführung: seitlich, Durchverdrahtung optional
DB-Ausführung – Gem. DB InfraGO AG Listungsblatt-Nr.: B 04.20.053
Design Life: 30+ Jahre.   Was ist Design Life?

Technische Daten

DPB 200 Bahnsteigleuchte Leuchtenlichtstrom (lm) Leistung (W) Lichtausbeute (lm/W) Farbtemperatur (K)
782mm Symmetrisch
GDB2-G1-2-2300N-MT-CC 2340 21 111 4000
CRI Lebensdauer Treiber (bis zu h) High Temp (°C) LED-Lichtstromerhalt
CRI>80 100.000 45 L₇₀B₁₀>110,000h
Gewicht (kg) LED-Energieeffizienzklasse Abmessungen
7 C 191mm x 84mm
782mm Asymmetrisch
GDB2-G1-2-2300NA-MT-CC 2370 21 112 4000
CRI Lebensdauer Treiber (bis zu h) High Temp (°C) LED-Lichtstromerhalt
CRI>80 100.000 45 L₇₀B₁₀>110,000h
Gewicht (kg) LED-Energieeffizienzklasse Abmessungen
7 C 191mm x 84mm
1392mm Symmetrisch
GDB2-G1-4-3600N-MT-CC 3560 31 114 4000
CRI Lebensdauer Treiber (bis zu h) High Temp (°C) LED-Lichtstromerhalt
CRI>80 100.000 45 L₇₀B₁₀>110,000h
Gewicht (kg) LED-Energieeffizienzklasse Abmessungen
14 C 191mm x 84mm
GDB2-G1-4-4800N-MT-CC 4700 42 111 4000
CRI Lebensdauer Treiber (bis zu h) High Temp (°C) LED-Lichtstromerhalt
CRI>80 100.000 45 L₇₀B₁₀>110,000h
Gewicht (kg) LED-Energieeffizienzklasse Abmessungen
14 C 191mm x 84mm
1392mm Asymmetrisch
GDB2-G1-4-3600NA-MT-CC 3670 31 118 4000
CRI Lebensdauer Treiber (bis zu h) High Temp (°C) LED-Lichtstromerhalt
CRI>80 100.000 45 L₇₀B₁₀>110,000h
Gewicht (kg) LED-Energieeffizienzklasse Abmessungen
14 C 191mm x 84mm
GDB2-G1-4-4800NA-MT-CC 4820 42 114 4000
CRI Lebensdauer Treiber (bis zu h) High Temp (°C) LED-Lichtstromerhalt
CRI>80 100.000 45 L₇₀B₁₀>110,000h
Gewicht (kg) LED-Energieeffizienzklasse Abmessungen
14 C 191mm x 84mm
1692mm Symmetrisch
GDB2-G1-5-3700N-MT-CC 3720 30 124 4000
CRI Lebensdauer Treiber (bis zu h) High Temp (°C) LED-Lichtstromerhalt
CRI>80 100.000 45 L₇₀B₁₀>110,000h
Gewicht (kg) LED-Energieeffizienzklasse Abmessungen
16 C 191mm x 84mm
GDB2-G1-5-4300N-MT-CC 4220 35 120 4000
CRI Lebensdauer Treiber (bis zu h) High Temp (°C) LED-Lichtstromerhalt
CRI>80 100.000 45 L₇₀B₁₀>110,000h
Gewicht (kg) LED-Energieeffizienzklasse Abmessungen
16 C 191mm x 84mm
GDB2-G1-5-5300N-MT-CC 5210 43 121 4000
CRI Lebensdauer Treiber (bis zu h) High Temp (°C) LED-Lichtstromerhalt
CRI>80 100.000 45 L₇₀B₁₀>110,000h
Gewicht (kg) LED-Energieeffizienzklasse Abmessungen
16 C 191mm x 84mm
1692mm Asymmetrisch
GDB2-G1-5-3700NA-MT-CC 3660 29 126 4000
CRI Lebensdauer Treiber (bis zu h) High Temp (°C) LED-Lichtstromerhalt
CRI>80 100.000 45 L₇₀B₁₀>110,000h
Gewicht (kg) LED-Energieeffizienzklasse Abmessungen
16 C 191mm x 84mm
GDB2-G1-5-4300NA-MT-CC 4310 35 123 4000
CRI Lebensdauer Treiber (bis zu h) High Temp (°C) LED-Lichtstromerhalt
CRI>80 100.000 45 L₇₀B₁₀>110,000h
Gewicht (kg) LED-Energieeffizienzklasse Abmessungen
16 C 191mm x 84mm
GDB2-G1-5-5300NA-MT-CC 5320 43 123 4000
CRI Lebensdauer Treiber (bis zu h) High Temp (°C) LED-Lichtstromerhalt
CRI>80 100.000 45 L₇₀B₁₀>110,000h
Gewicht (kg) LED-Energieeffizienzklasse Abmessungen
16 C 191mm x 84mm

Optionen

Leuchte Ende -LE
Leuchte Mitte (mit 1 x Anschlussdose und 3-Ph.-Durchverdrahtung) -LM
Leuchte Start (mit 2 x Anschlussdose und 3-Ph.-Durchverdrahtung) -LS
Montage als Einzelleuchte -IM
Ausführung Notlicht f. CEAG/Eaton-Baustein V-CG-S 4-400 W (f. Zentralbatteriesysteme) -EC
weiß matt -MW
titan -MT

• DB InfraGO AG Listung: B 04.20.053.
• Für Farboptionen ersetzen Sie bitte -MT mit dem erforderlichen Farbcode.
• Für -EC: der Überwachungsbaustein ist beizustellen.

;