Zum Inhalt springen

Produktbeschreibung

Redan 100 ist eine zielgerichtet entwickelte Leuchte für Wartungsgruben, die für optimale Sichtverhältnisse im Arbeitsbereich am Unterboden des Fahrzeugs sorgt und gleichzeitig die Blendung minimiert. Um die Anforderung der Blendungsbegrenzung nach EN 12464-1 (max. 1000 lm je 300 cm² leuchtende Fläche) zu erfüllen, wurde die Beleuchtungsstärke präzise auf die Diffusoroberfläche abgestimmt. 

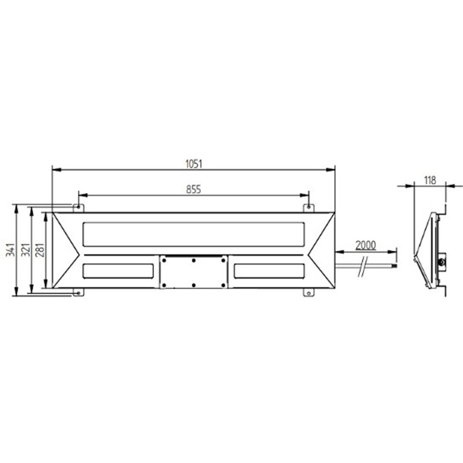
Mit einer Länge von 1051 mm ist die Leuchte für Wartungsgruben so konzipiert, dass sie problemlos zwischen Stützen montiert werden kann. Dabei gewährleistet sie eine gleichmäßige Ausleuchtung sowohl der Unterseite des Schienenfahrzeugs (Arbeitsbereich) als auch des Fußbodens der Arbeitsgrube (Verkehrsfläche).  

Dank des hohen Stoßfestigkeitsgrades und der Schutzart IP66 ist die Leuchte für Wartungsgruben Redan 100 geeignet für anspruchsvolle Einsatzbereiche mit rauen Umgebungsbedingungen. Bereits in ihrer Entwicklung wurde die Leuchte auf Nachhaltigkeit ausgerichtet. Dementsprechend ist sie auf eine hohe Lebensdauer ausgelegt und entspricht den Prinzipien des Kreislaufdesigns. 

Weitere Details

Gehäuse: Gehäuse aus Zintec-Stahl, extrem korrosionsbeständig
Farbe: Polyester-Pulverbeschichtung – weitere Farboptionen auf Anfrage.
Diffusor: Bündig abschließendes, klares Polycarbonat mit Opaler-Blendschutzfolie
Geräteträger: Wechselbarer Geräteträger mit Steckersystem (Plug&Play). Enthält Treiber, LED-Platinen und ggfs. weitere Komponenten.
Montage: Wandmontage 
Design Life: 30+ Jahre.   Was ist Design Life?

Technische Daten

Redan 100 Leuchtenlichtstrom (lm) Leistung (W) Lichtausbeute (lm/W) Farbtemperatur (K)
L1051mm
GRDN-4-1400N-MT 1419 12 118 4000
CRI Lebensdauer Treiber (bis zu h) LED-Lichtstromerhalt Lichtstrom Notlicht (lm)
CRI>80 100.000 L₉₀B₁₀>72,000h 327
Gewicht (kg) LED-Energieeffizienzklasse Abmessungen
15.1 B 1051mm x 281mm x 110mm
GRDN-4-3500N-MT 3442 26.2 131 4000
CRI Lebensdauer Treiber (bis zu h) LED-Lichtstromerhalt Lichtstrom Notlicht (lm)
CRI>80 100.000 L₉₀B₁₀>72,000h 327
Gewicht (kg) LED-Energieeffizienzklasse Abmessungen
15.1 B 1051mm x 281mm x 110mm

Optionen

Bewegungsmelder integriert, Basic -M1
3h-Notlichtbatterie, Dauerschaltung, Selbsttest -ES
DALI inkl. 3h-Notlichtbatterie, Dauerschaltung -ED
3h-Notlichtbatterie, Dauerschaltung -E3
schwarz strukturiert -TB
titan -MT
DALI-2 Dimming/Monitoring -DA

• Für Farboptionen ersetzen Sie bitte -MT mit dem erforderlichen Farbcode.
• Fernbedienung für Basic MWS -M1, Bestellcode: HRC-05.
• -DA und -M1 können nicht kombiniert werden.

;